中美自控
中美选型样本下载
联系我们
公司总机:021-66368888
公司传真:021-51686637
售后服务:400-600-2887
企业邮箱:sales@zmzk.cn
企业新闻

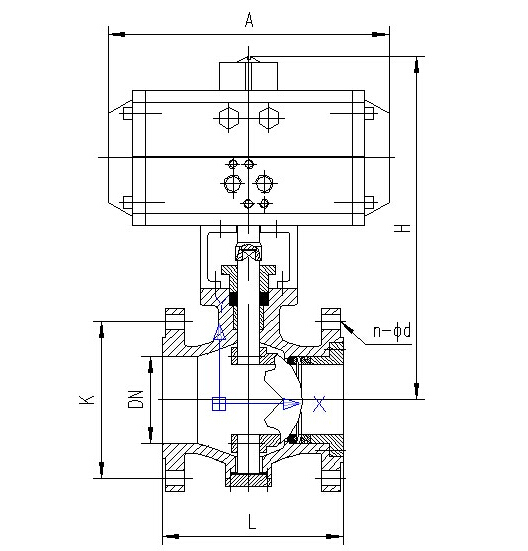
法兰V型气动球阀的技术参数及外形图

来源:上海中美自控阀门有限公司   发布日期:2017-6-1
      我们上海中美阀门是专业生产气动球阀、气动蝶阀的生产厂家,法兰V型气动球阀采用板簧加载的可动阀座结构,阀座与球体不会产生卡阻或脱离等问题,密封可靠,使用寿命长。

      V型球阀阀芯设计成带有特殊开关的V型缺口,流通能力大,压力损失小,并具有精确的截流特性和控制功能,流量特性为近似等百分比。启闭件采用V型球缺结构,完全解决了阀腔易沉积介质的问题。法兰V型气动球阀是由双(单)作用气动活塞式执行器和快装球阀组成。气动活塞式执行器采用低摩擦材料做成轴承套,缸体内外表面经硬质阳极氧化防腐处理,大大提高了气缸的使用寿命。本产品使用性能稳定,广泛的用于石化、冶金、电力,食品等工业部门。

 





产品名称

法兰V型气动球阀

产品型号

Q647H

产品口径

15-300MM

产品压力

1.0Mpa-4.0 Mpa

阀体材质

铸钢,不锈钢304,316,316L

阀板材质

铸钢,不锈钢304,316,316L

   驱动方式                              

                           手动、气动、电动                                                                                          


法兰V型气动球阀的阀体主要零部件材料: 

零件名称

主要材料

阀体

铸钢,不锈钢304,316,316L

球芯

OCr18Ni9,OCr17Ni12Mo2

阀座

聚四氟乙烯

阀杆

OCr18Ni9,OCr17Ni12Mo2

                    填料                                               

              聚四氟乙烯, 柔性石墨                                                                                        










本文关键词:法兰V型气动球阀




© 2011 上海中美自控阀门有限公司 备案号:沪ICP备12000162号-1 上海中美阀门10年专注气动球阀、气动蝶阀详情请 立即点击
公司主要产品:气动球阀 电动球阀 气动蝶阀 电动蝶阀 执行器
手机(微信):18917790285     销售部:021-39973998    021-66368888    传真:021-51686637